A Vision for Growth & Innovation
The college’s campus has a rich history, with buildings that have grown and evolved over time through multiple extensions and refurbishments. While this has supported expansion, it has also created challenges in terms of space efficiency, connectivity, and modernisation. Our role is to provide a clear roadmap for redevelopment, ensuring the college can optimise its existing facilities while investing in strategic new developments.
A Collaborative Approach
Working closely with ArchitecturePLB, Cliftons Projects has developed a series of carefully considered proposals, balancing functionality, sustainability, and long-term adaptability. Through detailed analysis and stakeholder engagement, we identified three priority projects that will serve as the foundation for the college’s transformation:
A New Build Teaching Block – A modern, flexible facility designed to accommodate growing student numbers and provide high-quality teaching spaces.
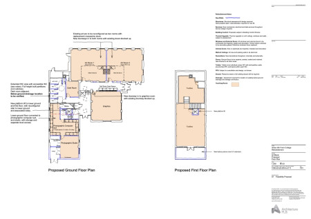
Refurbishment & Extension of the Art Block – Enhancing creative learning environments with upgraded studios and improved facilities to support artistic and design-based courses.
Refurbishment of the Existing Library – Creating a dynamic, technology-integrated learning hub that encourages collaboration, research, and independent study.
Unlocking Future Opportunities
Beyond these key projects, the masterplan also lays the groundwork for further campus-wide improvements. The completion of the new and refurbished spaces will introduce much-needed swing space, allowing the college to undertake a phased programme of smaller refurbishments to existing classrooms and teaching areas with minimal disruption to students and staff.
By taking a strategic, forward-thinking approach, this masterplan will not only enhance the student experience but also future-proof the college’s facilities, ensuring they remain fit for purpose in the years ahead.
At Cliftons Projects, we are proud to play a key role in shaping the next chapter for Itchen Sixth Form College, delivering practical, well-planned solutions that support both immediate needs and long-term ambitions.
We look forward to bringing this vision to life alongside the college. If we can help with any of you future expansion plans, please email us on info@cliftons-projects.com